/
【外観】
- 物件名
- 出水3丁目戸建
- 価格
- 7万円
- 管理/共益費
- -
- 築年月
- 1987年2月(築38年)
- 総戸数
- 1戸
- 設備条件
-
- 閑静な住宅地
- 24時間緊急通報システム
- 設備(その他)
-
-
-
- 駐車場/月額
- 有/0円
- 用途地域
- -
- 戸数
- 1戸 / -
- 取引態様
- 仲介
- 備考
- 初期費用はカードで決済いただけます。駅から徒歩11分のところにある一戸建てはいかがでしょうか。広々とした間取りが魅力的な、開放感のある一戸建ての物件です。2駅利用できる場所にあり、行き先に応じて乗車駅の使い分けができます。熊本市中央区や熊本市電A系統水前寺公園付近の賃貸戸建てをお探しなら、当社があなたを全力でお手伝い致します。まずはお気軽にお問い合わせください。
-
コインランドリー
WASHハウス 熊本国府二丁目店
430m(6分)
-
スーパー
サニー水前寺店
1151m(15分)
-
ディスカウントショップ
rocky(ロッキー) 水前寺店
1181m(15分)
出水3丁目戸建の基本情報
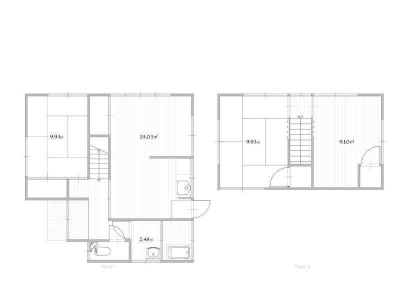
出水3丁目戸建の詳細情報
出水3丁目戸建のコメント(おすすめポイント)
この物件は、駅まで徒歩11分に立地しています。広々とした間取りが魅力的な、開放感のある一戸建ての物件です。こちらの物件では初期費用をカードでお支払いいただけます。付近に駅が2つあるので、経路を用途や行き先によって選べる物件です。熊本市中央区と熊本市電A系統水前寺公園付近の賃貸戸建て探しなら当社へおまかせ下さい。お客様からのお問い合わせをスタッフ一同お待ちしております。
出水3丁目戸建で募集中の物件
周辺施設
近隣の物件
出水3丁目戸建

